コンテンツへスキップ (Enter を押す)
匠工房  |  滋賀県米原市を拠点とする建築設計事務所

匠工房 | 滋賀県米原市を拠点とする建築設計事務所

  • Home
  • About Us
  • Works
    • 代表作
    • 民家再生
    • 住宅
    • 公共建築
    • 福祉・研修施設
    • 社寺建築
    • 修景
    • 指定文化財・登録有形文化財
    • 茶室建築
    • リニューアル
    • 商業建築
  • Blog
  • Contact
民家再生福祉・研修施設

邂逅庵

移築民家の概要と形式

1.移築民家の概要
今回の移築民家(岬家)は、琵琶湖の北に位置する滋賀県の最北の町、余呉町にあった民家です。余呉町は、福井との県境にある栃木峠を源とする高時川と、町の西部に位 置する椿坂を源とする余呉川とが南流し、その川沿いに集落が点在している。その集落の一つ、中之郷に移築する民家は建っていました。

中之郷の南には、羽衣伝説のある余呉湖があり、余呉湖のさらに南には戦国時代に秀 吉と柴田勝家の戦場となった賤ヶ岳がある。この地は滋賀県であるが、天気予報は福 井地方で見た方があたるといわれ、伝統的な民家の形式も隣接する北陸の地域の影響 を受けている。
この地に多く見られる民家形式は、研究者の間で「伊香づくり」と呼ばれている。 「伊香づくり」は、塩津街道を境に、西は大浦型、東は余呉型、と区別されている。
今回の移築民家は、この余呉型に分類されるものである。
2.移築民家(伊香づくり、余呉型)の形式
余呉型民家の外観は入母屋造りの草屋根(水辺ではヨシ、山手ではカヤ)で妻入り、入母屋の破風には「前だれ」と呼ばれる独特の棟飾りをつけ、地方色に富んでいます。又、その間取りは、前広間三間取りといわれます。
入口を入ったところにニワ(土間)があり、それにつづいてニウジ(入地)と称する落間があります。ニウジは、土間より掘り下げられ固められたタタキの上に、稲の籾殻を数センチ敷き、その上にむしろを敷いた広間である。
ニワとニウジは、ブンギ(分木)といわれる丸太で区切られている。その奥がアゲマといわれる床上で、客間となるザシキ、寝間となるオクがある。
余呉型の伝統的正統は、入母屋妻入り型とされていますが、全部の家が妻入りではなく、平入りの家もあります。これは、土地(敷地)の形状によってどちらでもするということである。ニワには、大径の柱が2本みられ、大きい方を「大黒柱」、その対面を「エビス柱」とこの地で呼ばれている。この余呉型民家の典型とみられるものが、滋賀県安土の「近江風土記の丘」の敷地内に移築保存(重要文化財 旧宮地家)されている。(図1)
余呉型民家の代表的な例(図1)
(重要文化財 旧宮地家)
前だれ(図1)
ニウジ(図1)
重要文化財 旧宮地家住宅平面図(図1)

3.配置計画
これまで建築されてきた高齢者福祉施設は、巨大で複雑であり、高齢者がそれまで生活してきた住居の空間のスケールをはるかに逸脱した建物となっています。
又、立地の面では、市街地より遠く離れて建築されることが多いため、生活圏域が施設内で完結してしまうようです。そのような中で、外部との関係を保つためには地域と結びついた生活が送れるような環境が必要とされています。市街地から離れたところでは、地域の人々との交流は難しく、「閉じた生活」になりやすいといえます。「外に開かれた生活」つまり、家族、友人が気軽に訪ねられ、地域の人々・隣接する集落の人との交流を可能にする場として、「移築民家」は位置づけされている。(図6)

又、施設で生活する高齢者からみた「移築民家」は、外観は高齢者がこれまで生活し、又見てきた地域の景観の記憶を留めるものであり、民家内部のつくりは、それまでの生活習慣や、身体の動きとして深く刻み込まれたものを留める記憶装置であるといえます。
大黒柱、土間、仏間、床の間、障子、襖、縁側、囲炉裏といった移築民家の中にあるつくりは、高齢者がかつて馴染んだ生活空間であり、そこにかつての生活什器、家具を持ち込めば、かつての家庭生活の記憶と重なり、自分の空間と感じることで安心して暮らすことにつながると考えられます。又、その生活道具が媒体となり、高齢者同士のコミュニケーションも活発になるものとおもわれます。
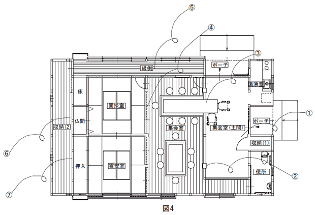
4.計画・設計で留意したこと
 	
①土間
最近の住宅では、見かけなくなった土の床。かつてはどこの民家にもみられた三和土の土間。高齢者の五感に働きかける中で、視覚と触覚を刺激する空間づくりとした。

②大黒柱
家の中心として、象徴化され、又格式表現の一部であったもの。対面の柱を当地では、恵比寿柱と呼ぶことから家の繁栄を願って存在したものか。改修後は土間境に立ち、民家の中で圧倒的な存在感を示す。

③囲炉裏
室内の床を四角に切って、火を燃やし、暖をとったり、煮炊きをした場所。季節に関係なく火種を絶やさないようにしていたところ。いつの間にか囲炉裏から火が消え、民家の中からも囲炉裏そのものが姿を消してしまった。囲炉裏の火で食物を焼き、又冬は体を暖めたり、又家族のコミュニティ の場であったところ。今回の囲炉裏では、火を使用することはできないが、そのまわりでは、 高齢者同士話かけたり、対面して座することで、話の輪に入りやすい ようにおもわれます。この場で自然発生するコミュニティに期待して いる。

④建具
質素な民家の中でも、すぐれたデザインの建具に出会うことが多い。
洗練された職人の技と精緻なつくりに日本の物づくりの原点を感じることがある。
空間を自由に開いたり、閉じたり、室をフレキシブルに仕切るすぐれもの。以前は、四季の移り変わりによる建具の交換もみられた。
今回は、コミュニティの場としての空間をフレキシブルに仕切り、多様な使い方ができることに役立っている。

⑤縁
家の外部と内部をつなぐ位置にある縁。かつては、外気に直接触れる外部であったようです。ある時は、近隣の人とのコミュニケーションの場であったところ。
気候の良い季節の中間期には、縁側に腰掛けてのなつかしいコミュニケーションの場となることを期待している。

⑥仏間(仏壇)
仏壇は、神棚とともに民家の中の代表的な宗教設備。必ずしもその家が厳格な仏教徒・神教徒であることを意味しているわけではない。
仏壇は、中に位牌が納められ、家族が亡くなった祖先と交流して心の安堵を得る生活習慣としての場であった。高齢者のそれぞれの記憶との対話の場にならないだろうか。

⑦収納
かつての民家は、生活の道具が現在ほどは無く、清楚な生活であったことから収納スペースが少ない。今回移築民家は、地域交流スペースとしての用途又会議室等としても使用されるため、その機能を果すために必要な収納部分を増築して、その機能を補っている。
平面図
外観
外観
コミュニティスペースの土間
コミュニティスペースの板の間
座敷
移転前(余呉町 中之郷)
移転前(おくどさんまわりの様子)
おくどさん
解体(屋根葺材料の葭の撤去作業)
構造材の仕口(ほぞと鼻栓)
解体中(内部の様子)
大梁
柱
大黒柱
邂逅の郷での建方
大黒柱と大梁の鼻栓
建方中の軸組み
建方完了

関連プロジェクト

旧柏原銀行 – 修景整備

2024年

湖北高月の民家

2025年

湖北の家

2024年

匠工房 | 滋賀県米原市の一級建築士事務所

匠工房 | 滋賀県米原市の一級建築士事務所

わたしたちの理念

私たちは、建築はまちの最大の記憶装置ととらえ、その生み出す新たな可能性を追求しながら、地域社会に貢献することを目指してまいります。

 

※サイト上に公開されているコンテンツの無断複製を禁止します

Site Map

  • Home
  • About Us
  • Works
  • Blog
  • Contact

Works

  • 代表作
  • 民家再生
  • 住宅
  • 公共建築
  • 福祉・研修施設
  • 社寺建築
  • 修景
  • 指定文化財・登録有形文化財
  • 茶室建築
  • リニューアル
  • 商業施設
© Copyright 2026年 匠工房 | 滋賀県米原市を拠点とする建築設計事務所. Perfect Portfolio | Developed By Rara Theme. Powered by WordPress.