柏原駅前広場シェルターの設計について
新たな駅前広場と、木のやさしさとぬくもりに包まれた駅舎のシェルターが、2024年に完成した。
駅はまちの入口であり顔となるところ、柏原らしい駅前であってほしいものである。
近隣の駅で設置されるシェルター(庇)は、安易に既製品で構成された物が多用され地域らしさを感じることが少ない。私たちは『柏原らしさ』について検討を重ね、このまちにふさわしいシェルターの設計を行った。
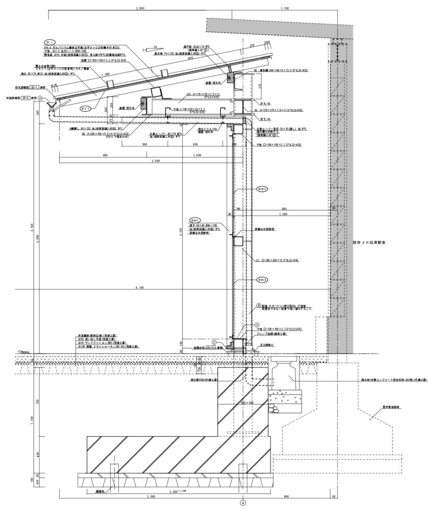
その形態は、中山道沿いの町屋に多く見られる軒下の構造(肘木+せいがい桁)を模したものとした。一部の外壁は甍の家並みをイメージする黒の陶板としている。
また、柏原駅が位置する柏原区は、約450haという広大な区有林を有している。地産地消・低炭素な建築づくりの観点から区有林の木を伐採し、格子・天井・垂木・野地板に使用した。伐採した跡地には、子どもたちが桧の苗木を植えることで、持続可能な森林のあり方を考える契機になればと考えている。
住民が作り上げた柏原駅前広場シェルター
市の事業で柏原駅の修景を行うことが決まってから、柏原宿活性化実行委員会景観部会によって、幾度となく『どのようなシェルターとすべきか』について話し合いが行われた。
私たちは住民の話し合いに参加し、設計を行った。完成したシェルターは、住民の想いがたくさん詰まった建物となった。


歴史的な街並み 中山道柏原宿
柏原は中山道の宿場町で、江戸時代の面影を色濃く残す町並みが、魅力のひとつである。中山道沿いには、江戸時代の絵図とほとんど変わらない町屋が現在も建ち並ぶ。



町屋を模したデザイン
シェルターの庇や、格子・陶板について既存の町家のある町並みをデザイン要素として設計した。

1/fゆらぎ
駅の立面デザインでは、利用者に柔らかでリズミカルな印象を与えることを目指し、1/fゆらぎの理論を応用したルーバー(格子)の配置パターンを採用した。
これを実現するため、パラメトリック・デザイン・ツールのGrasshopperとプログラミング言語のPythonを利用し、ルーバーの配置パターンを生成するスクリプトを作成した。間欠性カオスの理論に基づくアルゴリズムで、感性に働きかける「ゆらぎ」パターンを数学的に再現し、その結果をデザインに落とし込んだ。

地元の木材の利用
森には、地表に雨水を蓄えてきれいな水にしたり、二酸化炭素を吸収して空気をきれいにしたり、木の根が張ることで土を掴み災害を防いだりなど、社会に役立つさまざまな働きがある。
森のこうした働きを守り、森林資源の保全に役立つよう、私たちは長く『木の建築』に関わってきた。
私たちの住むまちの駅舎の修景に取り組む中で、地元の木材を多用し、環境に優しい建築とするため、まちの所有する森(区有林)に入り、使用可能な立木の選定と伐採作業の立ち合いを行った。
伐採後の森には、区民と保育園児によって、桧の苗木の植樹が行われた。

修景前後





第1回びわ湖建築賞 特別賞を受賞致しました。応募時に作成しましたプレゼン資料です。




