14年前の京都工芸繊維大学構内にある旧舟岡邸(現在は同大学の同窓会館)の改修につづく、2回目となるヴォーリズ建築のリノベーションである。
■この会館は、経済学部の前身である旧彦根高等商業学校の同窓会(陵水会)館として昭和13年11月に建築された。ヴォーリズの設計によるスペイン風ゴシック様式の木造モルタル造りで、構造の巧妙さと風格の高さで建築界でも著名な建物である。
■平成9年5月文化財保護法の規定に基づく「登録有形文化財」に、国立大学では東京大学安田講堂に次いで2件目の登録となった。
■建物は滋賀大学(彦根学舎)の構内にあり、陵水会館として大学の同窓会館又、教授たちの宿泊施設として使用されていた。
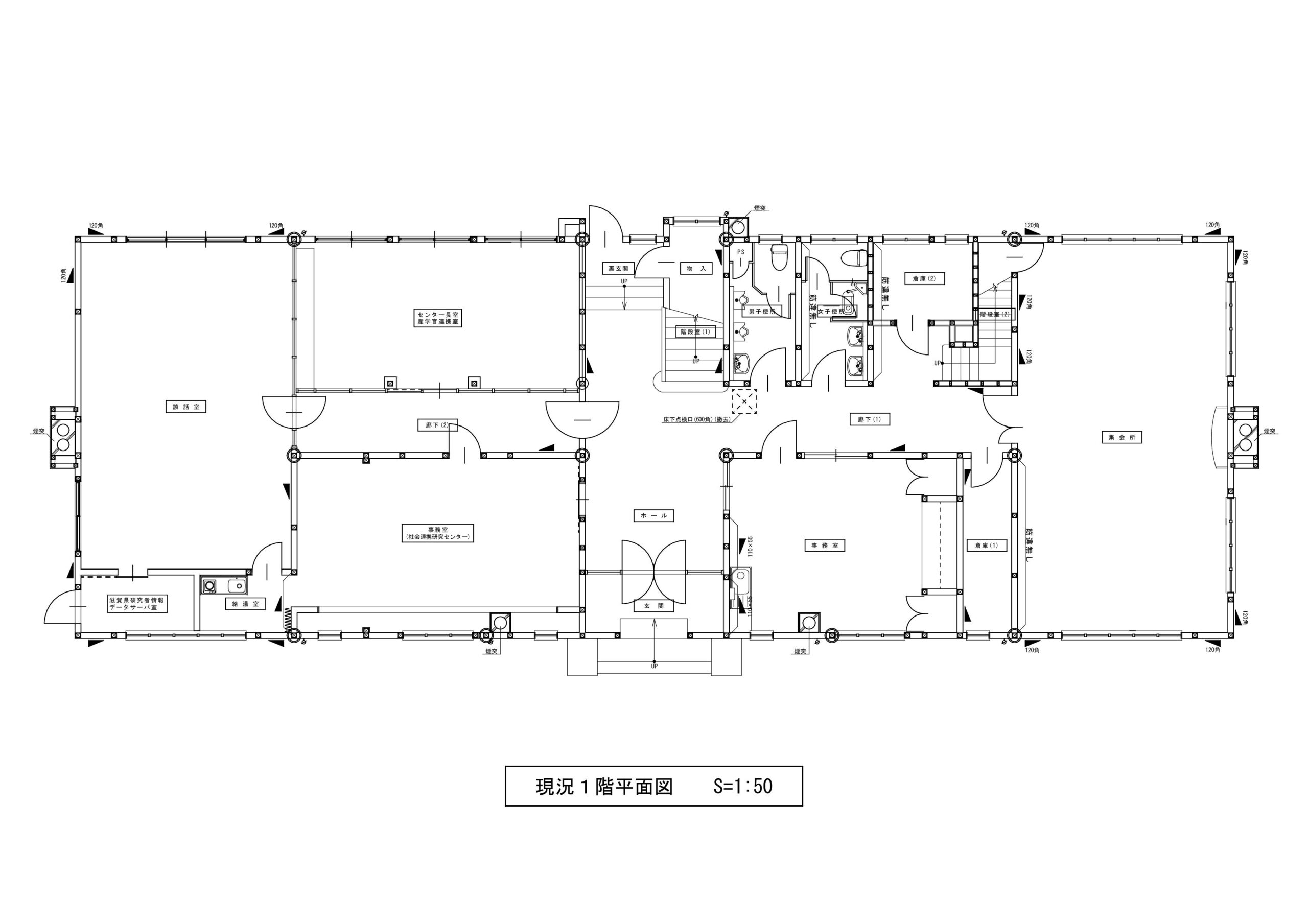
■細かく仕切られた間仕切壁を撤去、一つの空間とし、セミナーハウスとして改修している。




改修後の大空間を支える大断面の長尺梁(7m程度)の搬入と支持する方法、又既存小屋組みをそのままに2階梁を取り替える施工順序など、何度も検討を重ねた。それは単なる設計業務の範囲を超えて、施工計画まで踏み込んで検証が必要であった。建設は発注者が国立大学法人という性格上、公告、入札という順路を踏むため、設計段階で確実な建築の可能性が求められることになる。現場に何度も足を運び『建物の声』が聞こえてくるまで設計内容と建築の順序を検証している。
2022年末に竣工し、大学の担当者から「学内で一番オシャレな建物になった」との声を頂いている。







玄関扉は当初の設計図にある建具表をもとに復原製作している。







ヴォーリズ建築事務所の設計図(原図)から






第1期工事の状況






